店舗
金沢市片町1丁目1-29 混元丹ビル9階
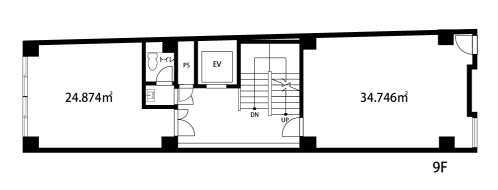
59.6m2
¥158,664 / 月
エレベーターからおりると右と左に事務所入り口の扉が二つ。ワンフロア2部屋セットのお部屋になります。使い方は自由。片方を会議室や応接スペースに、もう片方を事務所になんて使い方はいかがでしょうか?場所は香林坊交差点近く、百万石通り沿い。部屋の窓を開ければ中央公園や香林坊大和が、もう片方の部屋の窓からは片町の新たな顔、片町きららが見える、金沢の中心地です。床、壁、天井、さらには共用部の階段の壁や給湯室の中も基本的には白で統一されていて、清潔感がある、スタイリッシュな印象です。
アクセス
公共交通機関JR北陸本線金沢駅までバス10分 香林坊バス停まで徒歩1分











